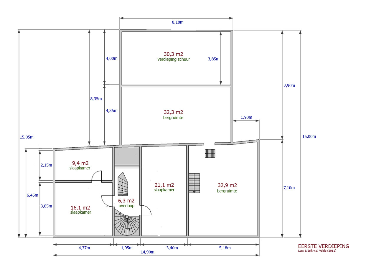
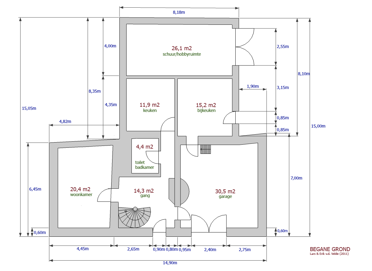
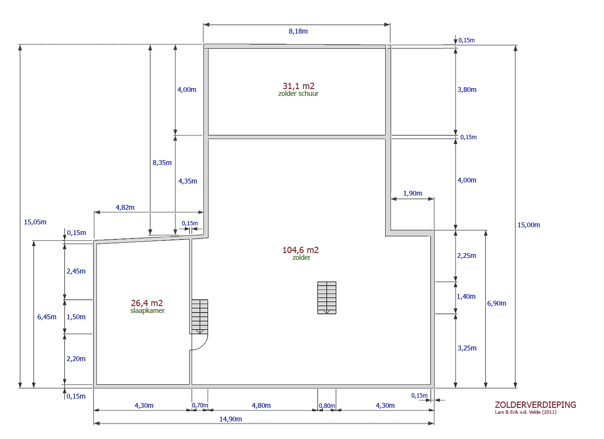
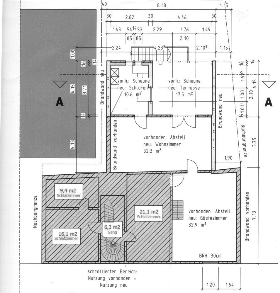
We waren al veel langer van plan om plattegronden van het pand te maken, makkelijk voor jezelf en het geeft anderen ook een beter idee van hoe alles in elkaar zit.
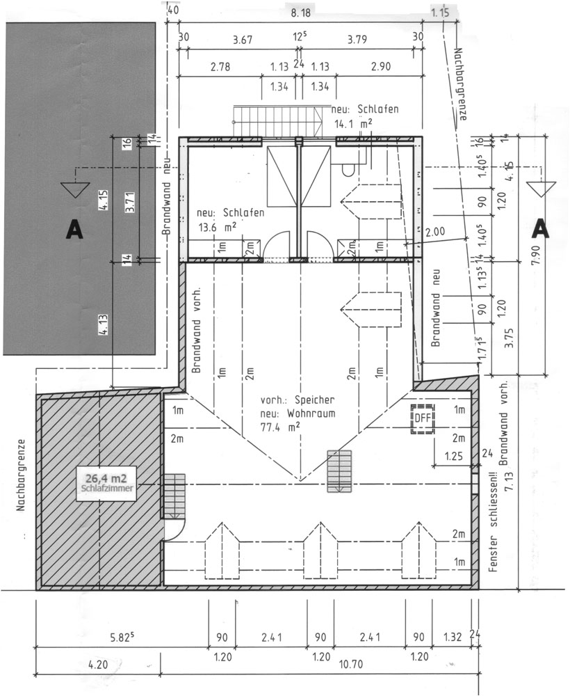
Lang bleef het bij plannen, totdat het Bauamt vroeg om tekeningen van het pand waarop vooral deuren en trappen moesten hierop zichtbaar zijn.
Het begin is er dus, nu nog tekeningen van de gevels waarop ook de ramen en luiken te zien zijn.

Leave a Reply